Produk
RUMAH > Produk
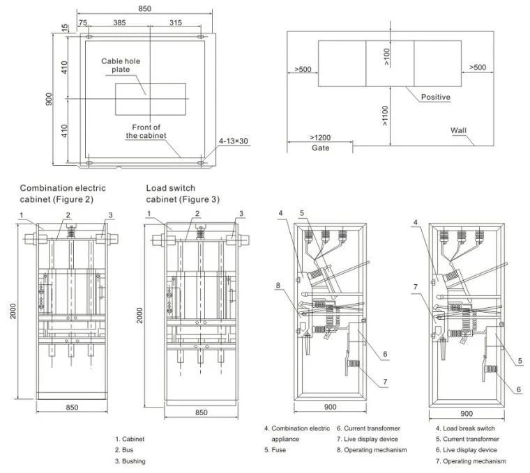
Alat Suis Cincin Tertutup Tetap 35kV untuk Pengagihan
  • Alat Suis Cincin Tertutup Tetap 35kV untuk PengagihanAlat Suis Cincin Tertutup Tetap 35kV untuk Pengagihan

Alat Suis Cincin Tertutup Tetap 35kV untuk Pengagihan

Comewill adalah pengilang profesional di China. Alat suis cincin tertutup tetap 35kV kami untuk pengagihan (selepas ini dirujuk sebagai "unit utama cincin") untuk pengagihan kuasa. Ini ialah alat suis voltan tinggi yang direka khusus untuk sistem pengagihan kuasa, sesuai untuk keperluan perolehan dan pemilihan projek infrastruktur kuasa, dan merupakan pilihan ideal untuk keputusan perolehan.

Sebagai peralatan teras untuk kawalan dan perlindungan rangkaian pengedaran, alat suis cincin tertutup tetap 35kV berkualiti tinggi Comewill untuk pengedaran yang dibuat di China boleh secara stabil mengeluarkan kuasa yang boleh dipercayai dalam pelbagai senario aplikasi, seperti projek pembinaan dan pengubahsuaian grid kuasa bandar, perusahaan perindustrian dan perlombongan, bangunan bertingkat tinggi dan kemudahan awam memenuhi sepenuhnya keperluan teras pembeli untuk prestasi peralatan.

Unit utama cincin reka bentuk tetap ini telah menjadi produk pilihan untuk perolehan sistem pengagihan kuasa moden, menawarkan konfigurasi infrastruktur kuasa yang menjimatkan kos.

Data Teknikal

Nombor siri item Unit Data
1 Voltan terkadar kV 12 40.5
2 Kekerapan dinilai Hz 50/60
3 Nilai semasa A 630 630/1250
4 Kekerapan kuasa yang diberi nilai menahan voltan (1min) Fasa dan ke bumi kv 42 95
Mengasingkan jarak 48 118
Penarafan kilat implus menahan voltan Fasa dan ke bumi 75 185
Mengasingkan jarak 85 215
Kekerapan kuasa menahan voltan (Kawalan dan litar tambahan) 2
5 Dinilai masa singkat menahan arus kA 20/25 31.5
6 Puncak ternilai menahan arus kA 50/63 80
7 Tempoh arus litar pintas terkadar s 4 4
8 Arus pemutus litar pintas yang dinilai kA 20/25 31.5
9 Dinilai semasa membuat litar pintas kA 50/63 80
10 Tempoh arka s 1 1
11 Urutan operasi yang dinilai
0-0.3s-CO-3min-CO
12 Gas penebat
SF6
13 Kadar kebocoran tahunan % ≤ 0.01
14 Tahap perlindungan standard Kotak gas tertutup
IP67
Kepungan suis IP4X
15 Tekanan inflasi berkadar MPa 0.03
Tekanan tahap fungsi minimum 0.01
16 Voltan bekalan berkadar litar tambahan V DC 24, 48, 110, 220, AC220
17 Kehidupan mekanikal Pemutus litar Operasi 10000 11000
Suis pengasingan 5000 3000
Suis pembumian 5000 3000
18 Daya tahan elektrik pemutus litar Operasi 30(E2)
19 Kehilangan kesinambungan perkhidmatan
LSC2

Parameter Persekitaran Operasi Teknikal

·Suhu persekitaran: -10°C ~ +40°C
·Ketinggian: Voltan tinggi ≤1000m; Voltan rendah ≤2500m (reka bentuk tersuai tersedia untuk perolehan jarak jauh)
·Kelembapan relatif: ≤85%
·Keamatan seismik: ≤ Magnitud 8
· Prasyarat alam sekitar: Tiada bahaya kebakaran/letupan, tiada pencemaran teruk, tiada kakisan kimia, tiada getaran ganas (tapak perolehan mesti memenuhi ini)

Melalui usaha gigih semua pekerja kami, kami terus meningkatkan pengurusan kualiti kami untuk memastikan alat suis cincin tertutup tetap 35kV kami untuk pengedaran kekal sebagai sumber kepercayaan kepada pelanggan kami. Matlamat kami adalah untuk menyediakan pelanggan dengan sistem ujian yang paling komprehensif dan penyelesaian yang paling sesuai, memaksimumkan kepuasan pelanggan. Kami mematuhi prinsip mengutamakan pelanggan, orientasi pasaran, dan kecekapan, dan terus memupuk bakat kami.

Hot Tags: unit utama cincin tertutup logam, China, pengilang, kilang, harga, Suis Pemutus Beban Udara 630A, LBS Gas 24kv Dalaman, Suis Pemutus SF6, Pemutus Litar Vakum Bersalut Porselin Luar, Pengubah Voltan Fasa Tunggal 20kV, Pemutus Vakum Bertebat Litar Udara

Teg Panas: Alat Suis Cincin Tertutup Tetap 35kV untuk Pengedaran, China, Pengilang, Pembekal, Kilang, Borong, Disesuaikan, dalam Stok, Buatan China, Harga Rendah, Kualiti
Hantar Pertanyaan
Maklumat Hubungan
Hantar pertanyaan kepada Comewill untuk suis, pemutus litar vakum, pengubah arus. Dapatkan sebut harga tersuai, harga rendah atau sokongan pakar daripada pasukan kilang China kami.
X
Kami menggunakan kuki untuk menawarkan anda pengalaman menyemak imbas yang lebih baik, menganalisis trafik tapak dan memperibadikan kandungan. Dengan menggunakan tapak ini, anda bersetuju dengan penggunaan kuki kami. Dasar Privasi
Tolak Terima